REQUEST A TOUR If you would like to see this home without being there in person, select the "Virtual Tour" option and your agent will contact you to discuss available opportunities.
In-PersonVirtual Tour

Listed by LISTINGS.COM Dane Johnston
$ 49,999
Est. payment | /mo
10,000 Sqft Lot
$ 49,999
Est. payment | /mo
10,000 Sqft Lot
Key Details
Property Type Vacant Land
Sub Type Land
Listing Status Active
Purchase Type For Sale
Subdivision Finch Farms
MLS Listing ID 2452112
Style 43 - Comm/Industrial
Annual Tax Amount $303
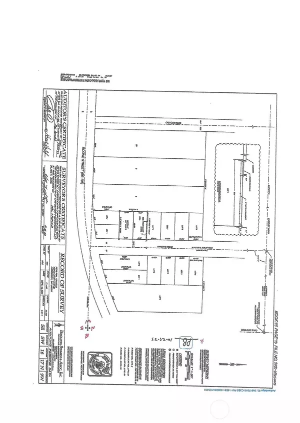
Lot Size 10,000 Sqft
Lot Dimensions 100 x 106
Property Sub-Type Land
Property Description
Check out this Level 10,000 Square Foot Lot with zoning of Residential/Commercial parcel. Lot 1-2 & 3. Power, Water and Sewer hook ups are in the street, survey has been done along with City approved building envelope. Buyer to verify all information to their Satisfaction including Zoning, Utilities and any other information for their intended use. City of Aberdeen for Rules, Regulations, Restrictions.
Location
State WA
County Grays Harbor
Area 198 - Aberdeen
Interior
Fireplace false
Exterior
Utilities Available Electricity Available
View Y/N No
Building
Lot Description Paved
Sewer In Street
Water In Street
Schools
Elementary Schools Buyer To Verify
Middle Schools Miller Jnr High
High Schools J M Weatherwax High
School District Aberdeen
Others
Senior Community No
Acceptable Financing Cash Out, Conventional
Listing Terms Cash Out, Conventional

"Three Trees" icon indicates a listing provided courtesy of NWMLS.
GET MORE INFORMATION

Dana Yarwood
Broker | WA11547 | OR 201203012






